Bestandsbilder
Gemeinsam mit dem Besitzerehepaar habe ich ein Wohnhaus für die Familie entworfen, geplant und umgesetzt.
Standort:
Sankt Augustin
Leistungsumfang:
Entwurfs- und Ausführungsplanung
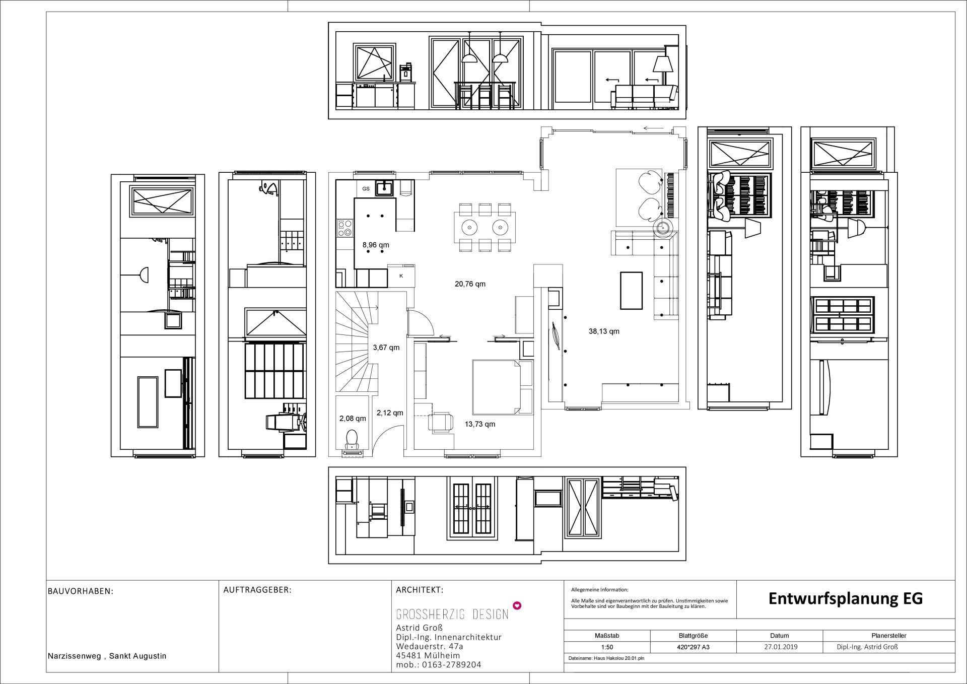
Ziel war es einen großen gemeinsamen Raum für die Familie zu schaffen, der alle Bedürfnisse eines mordernen Lebens vereint und möglichst viel gemeinsame Zeit ermöglicht.
Eine offene und helle Gestaltung des Raums in Kombination mit klar erkennbaren Bereichen stellt das Familienleben im Erdgeschoss in den Vordergrund.
Hierfür musste die Raumstruktur angepasst, Wände entfernt und Fenster vergößert werden.
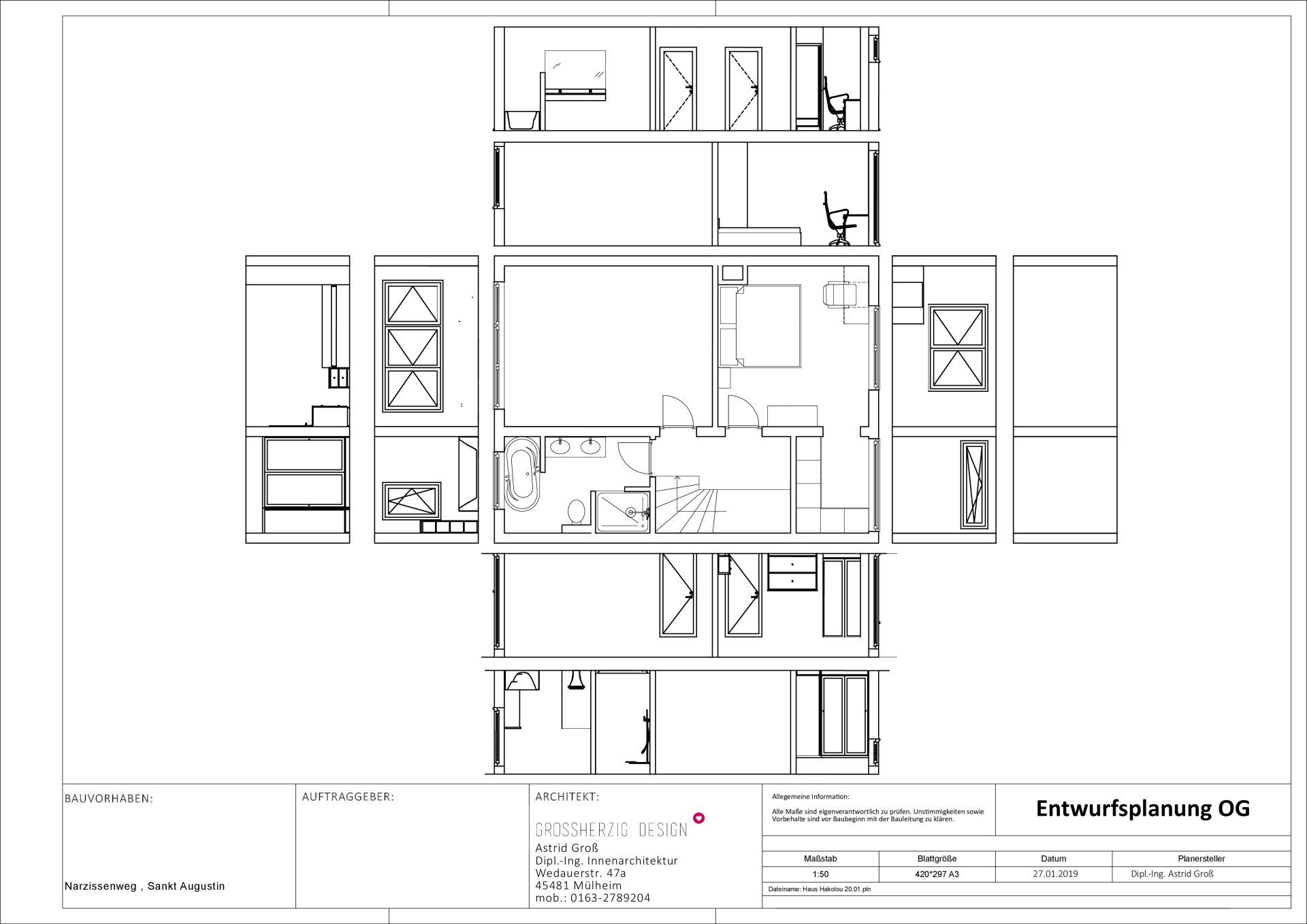
Das Obergeschoss ist für den privaten Bereich - die Schlafzimmer - angelegt.
Standort:
Sankt Augustin
Leistungsumfang:
Entwurfs- und Ausführungsplanung
Material Konzept
Angebot/Vergabe
Bauleitung
Pläne





















