Bestandsbilder
Aus einer alten Malzfabrik, die im Jahr 1917 gebaut wurde, habe ich in Zusammenarbeit mit dem Künstlerehepaar Oda und Axel Schultz ein Designcenter entwickelt und geplant.
Wichtig hierbei war uns, den ursprünglichen Charakter des Gebäudes zu erhalten und ihn mit neuen Funktionen zu unterstreichen.
Durch die Belichtung des Gebäudes und die Gestaltung von
Verkehrswegen wird aus dem ehemaligen zweckgebundenem NutzbauDurch die Belichtung des Gebäudes und die Gestaltung von
ein lebendiger Lebensraum, der mit viel Liebe zum Detail besticht.
Standort:
Haßmersheim
Leistungsumfang:
Entwurfs- und Ausführungsplanung
Genehmingungsplanung
Material Konzept
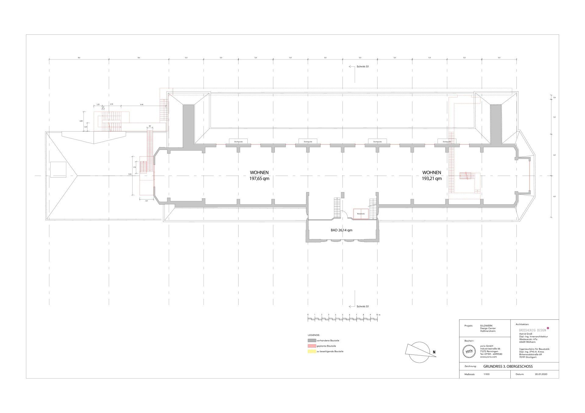
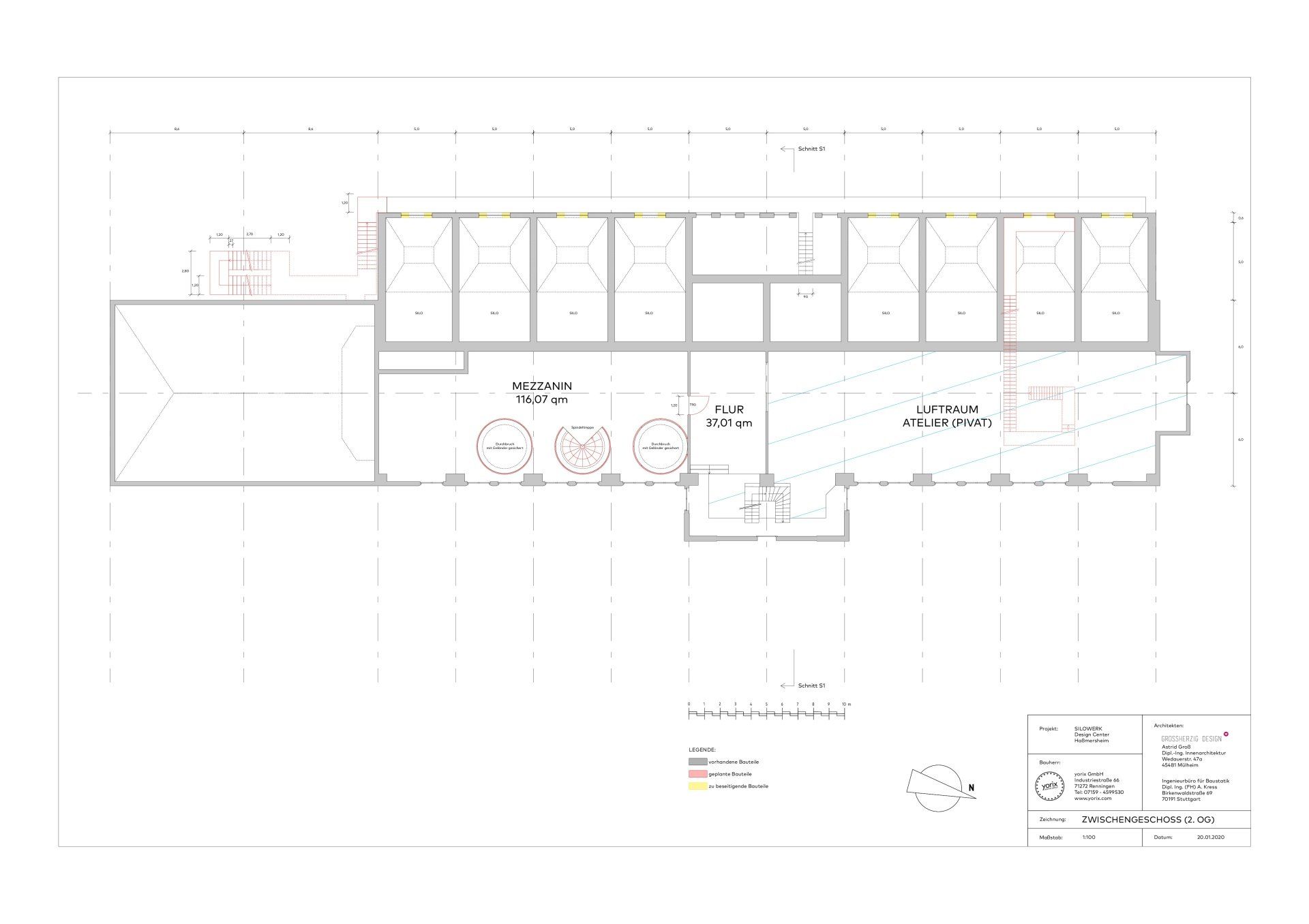
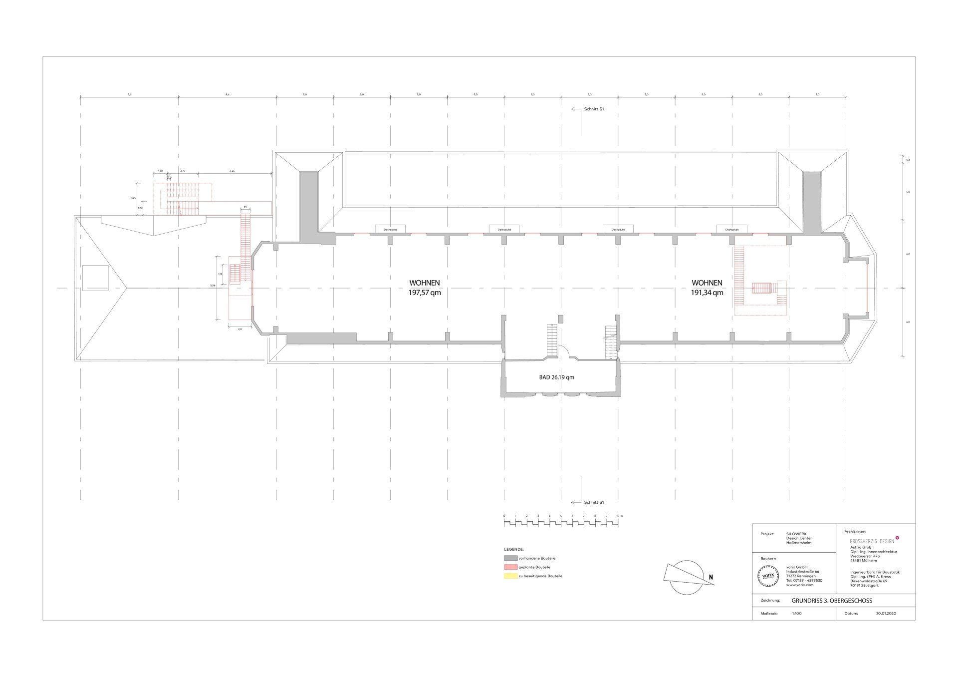
Pläne























